Vente appartement - Paris 3 - Bretagne - Ascenseur
Paiement en cryptomonnaie disponible. En savoir plus
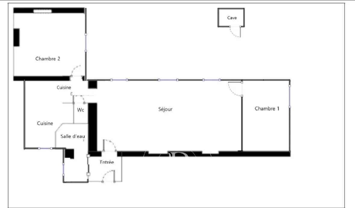
* Honoraires d'agence à la charge du vendeur.Dans une rue prisée du Marais, à deux pas de la rue de Bretagne, BARNES vous propose en exclusivité ce bel appartement aux éléments de l'ancien conservés. Situé au 2ème étage accessible par ascenseur, entièrement sur cours, ce bien est distribué tel que: Une entrée avec salle d'eau, un beau séjour, une grande cuisine séparée, deux chambres d'un bout à l'autre du salon et un WC indépendant. Malgré des vis à vis sur cour, ce bien profite d'un maximum de luminosité grâce à une belle hauteur sous plafonds et de hautes fenêtres. Une cave complète cette offre. Exclusivité - Médéric de Rivoyre - +33662174404 Honoraires à la charge du vendeur - Nombre de lots dans la copropriété: 19 - Montant moyen de la quote-part de charges courantes 3,284 €/an - Montant estimé des dépenses annuelles d'énergie pour un usage standard : 2230€ ~ 3060€ - Les informations sur les risques auxquels ce bien est exposé sont disponibles sur le site Géorisques : www.georisques.gouv.fr - Médéric DE RIVOYRE - Agent commercial - EI - RSAC 841703689
Les informations sur les risques auxquels ce bien est exposé sont disponibles sur le site Géorisques : www.georisques.gouv.fr
Consommation énergétique
Logement très performant
Logement extrêmement consommateur d'énergie
*Dont émissions de gaz à effet de serre
Peu d'émissions de CO2
Emissions de CO2 très importantes
Montant, minimum, estimé des dépenses annuelles d’énergie pour un usage standard : 2230 €/an (année de référence N.C.)
Montant, maximum, estimé des dépenses annuelles d’énergie pour un usage standard : 3060 €/an (année de référence N.C.)
Ce bien vous est présenté par:

Médéric DE RIVOYRE
Agent Commercial E.I.
ContacterBARNES Le Marais
125 rue Vieille du Temple
75003 PARIS
S'inscrire à notre newsletter.
Nos actualités sur l'immobilier de luxe et nos évènements
Vous êtes intéressé(e) par ?